
İki yollu yönlendirici valf
Pnömatik taşıma sistemlerinde ürün yönlendirme valfi olarak kullanılır. Kumanda manuel , pnömatik veya elektrik kontrollü ( on-off , oransal ) olabilir.
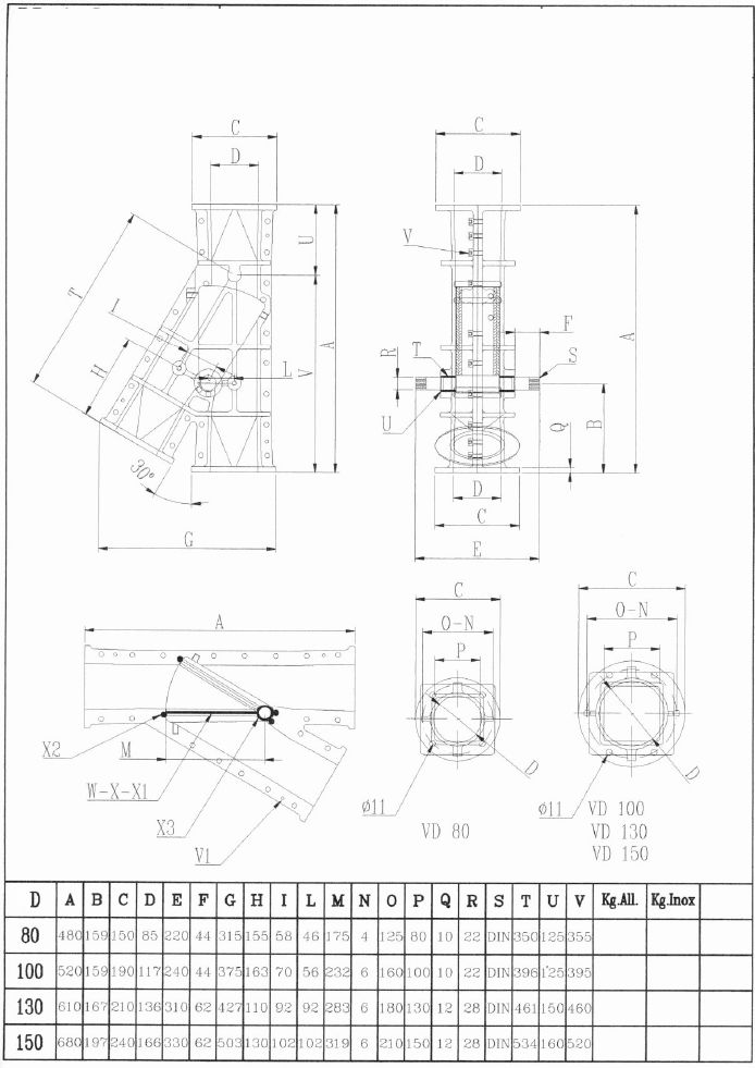
Gövde ,aluminyum ve klepe 304 SS ( Opsiyonel 316 SS) paslanmaz çelikten imal edilmektedir. 60..168 MM boru hatları için kullanılabilir.


Kategori: DV YONLENDIRME VALF SISTEMI
Yorum Ekle