

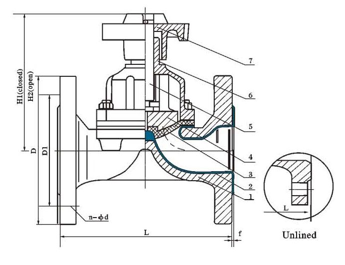
Gövde malzemesi (1): Dökme demir ,Grafitli dökme demir ,karbon çelik ,paslanmaz çelik
Kapak malzemesi (6): Dökme demir ,Grafitli dökme demir ,karbon çelik ,paslanmaz çelik
İç Kaplama malzemesi (2): Kaplamasız / Fluorin plastik
Diyafram malzemesi (3): Fluorin plastik ( aşınmaya karşı dayanımı yüksek malzeme )
Disk malzemesi (4) :Dökme demir
Mil (5) :Karbon çelik ,paslanmaz çelik
El volanı (7): Dökme demir
| Bağlantı (DN) | Nominal Basınç (MPa) | Çalışma Basıncı (MPa) | L | D | D1 | Z-Φ | f | H1 | H2 | D0 | (Kg) |
| 15 | 1.6 | 1.6 | 108 | 95 | 65 | 4-14 | 2 | 90 | 99 | 75 | 2.5 |
| 20 | 117 | 105 | 75 | 4-14 | 2 | 93 | 103 | 75 | 3 | ||
| 25 | 127 | 115 | 85 | 4-14 | 2 | 100 | 112 | 85 | 4 | ||
| 32 | 146 | 140 | 100 | 4-18 | 2 | 127 | 144 | 120 | 6.5 | ||
| 40 | 159 | 150 | 110 | 4-18 | 2 | 136 | 156 | 120 | 7.5 | ||
| 50 | 190 | 165 | 125 | 4-18 | 2 | 151 | 177 | 120 | 10 | ||
| 65 | 1.0 | 1.0 | 216 | 185 | 145 | 4-18 | 2 | 183 | 213 | 165 | 16 |
| 80 | 254 | 200 | 160 | 8-18 | 2 | 198 | 273 | 230 | 23.5 | ||
| 100 | 305 | 220 | 180 | 8-18 | 2 | 266 | 320 | 280 | 34 | ||
| 125 | 356 | 250 | 210 | 8-18 | 3 | 319 | 386 | 280 | 44 | ||
| 150 | 406 | 285 | 240 | 8-22 | 3 | 380 | 453 | 368 | 67.5 | ||
| 200 | 0.6 | 521 | 340 | 295 | 8-22 | 3 | 506 | 626 | 400 | 141.5 | |
| 250 | 635 | 395 | 350 | 12-22 | 3 | 598 | 734 | 500 | 229 | ||
| 300 | 0.4 | 749 | 445 | 400 | 12-22 | 3 | 698 | 778 | 560 | 321 | |
| 350 | 749 | 505 | 460 | 16-22 | 3 | 723 | 883 | 560 | 360 |
Kategori: Diyafram Valf
Yorum Ekle